Inmueble | En Alquiler | Oficinas
Alquiler de oficina en Calle del Pintor Sorolla, 31
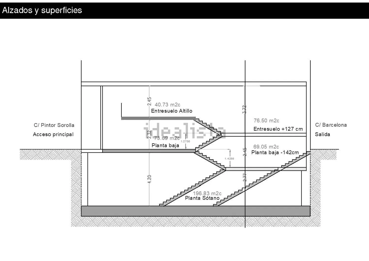
Calle del Pintor Sorolla, 31
6.000€
457 |
Descripción del inmueble:
Ubicado en plena zona financiera de la ciudad, justo frente a la entrada de El Corte Inglés en Pintor Sorolla. Cuenta con una superficie total de 456 m² construidos, distribuidos en 260 m² destinados a uso comercial y 196 m² en sótano. Preparado para su uso inmediato como despacho u oficina. Dispone de una reforma de diseño con materiales de primera calidad. Incluye ascensor de uso exclusivo que conecta el altillo, la planta baja y el sótano. Tiene tres baños, uno de ellos adaptado. Ofrece doble acceso: entrada principal por Pintor Sorolla y acceso posterior por la calle Barcelona.
Este anuncio es a título informativo, no vinculante ni contractual, con posibles variaciones o erratas.
Caracteristicas básicas:
- 457 m² construidos
- Distribución mamparas
- 3 baños o aseos completos fuera de la oficina
- Segunda mano/buen estado
Equipamiento:
- Aire acondicionado de frío/calor

