Inmueble | En Venta | Locales o naves comerciales
Local en venta en avenida del Doctor Gadea 12, Alicante
avenida del Doctor Gadea 12, Alicante
680.800
300 |
Descripción del inmueble:
SIN COMISION INMOBILIARIA
Local Comercial en esquina con alta visibilidad en pleno centro de Alicante, ubicado en una de las avenidas más céntricas y concurridas de la ciudad.
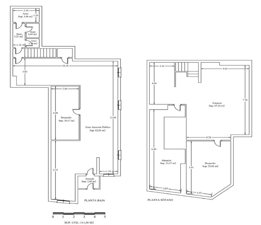
Atractivo espacio comercial disponible, ideal para emprendedores y empresarios que busquen establecerse en una ubicación privilegiada. Este inmueble, que abarca una superficie construida en planta baja de 137 m² y 161 m² de sótano.
Cuenta con una magnífica fachada haciendo esquina que garantiza alta visibilidad. Acondicionada como oficina bancaria, ofrece múltiples posibilidades de uso, desde oficinas administrativas hasta un espacio comercial para cualquier tipo de actividad comercial adaptándose a diversas necesidades del mercado.
Este local comercial, disponible para venta, se presenta como una opción inmejorable para aquellos que buscan establecer un negocio en un entorno dinámico y en crecimiento, ubicado en zona principal y exclusiva de Alicante.
No pierda la oportunidad de visitar este inmueble que combina ubicación, versatilidad y una estructura de alta calidad.
Este anuncio es a título informativo, no vinculante ni contractual, con posibles variaciones o erratas.
Caracteristicas básicas:
- 300 m² construidos, 299 m² útiles
- 2 plantas
- Segunda mano/buen estado
- Distribución 3 estancias
- 2 aseos o baños, adaptados para minusválidos
- Situado a pie de calle
- 2 escaparates
- Construido en 1968
Edificio:
- Bajo
- Fachada de 10 m. lineales
Equipamiento:
- Aire acondicionado
- Almacén/archivo

